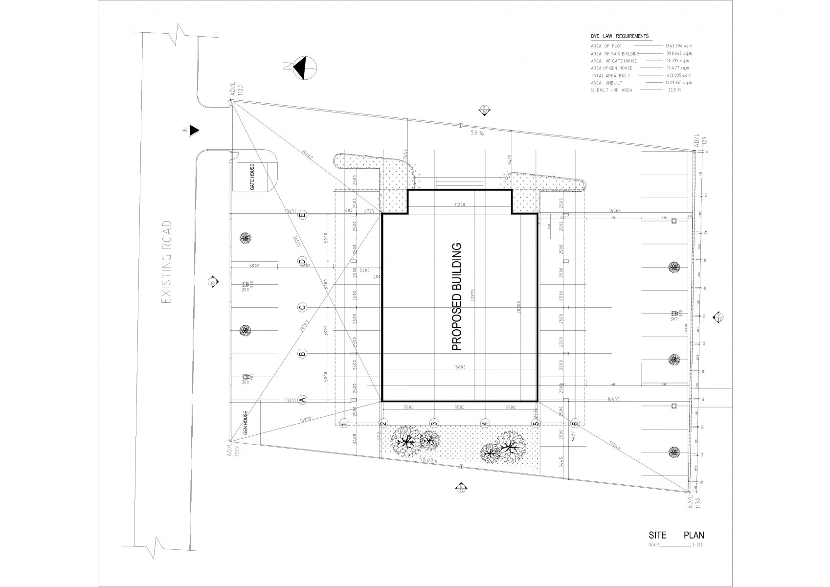
Kon-X Office Development, Lekki, Lagos

Scope of Services: Architecture and Project Management Services.