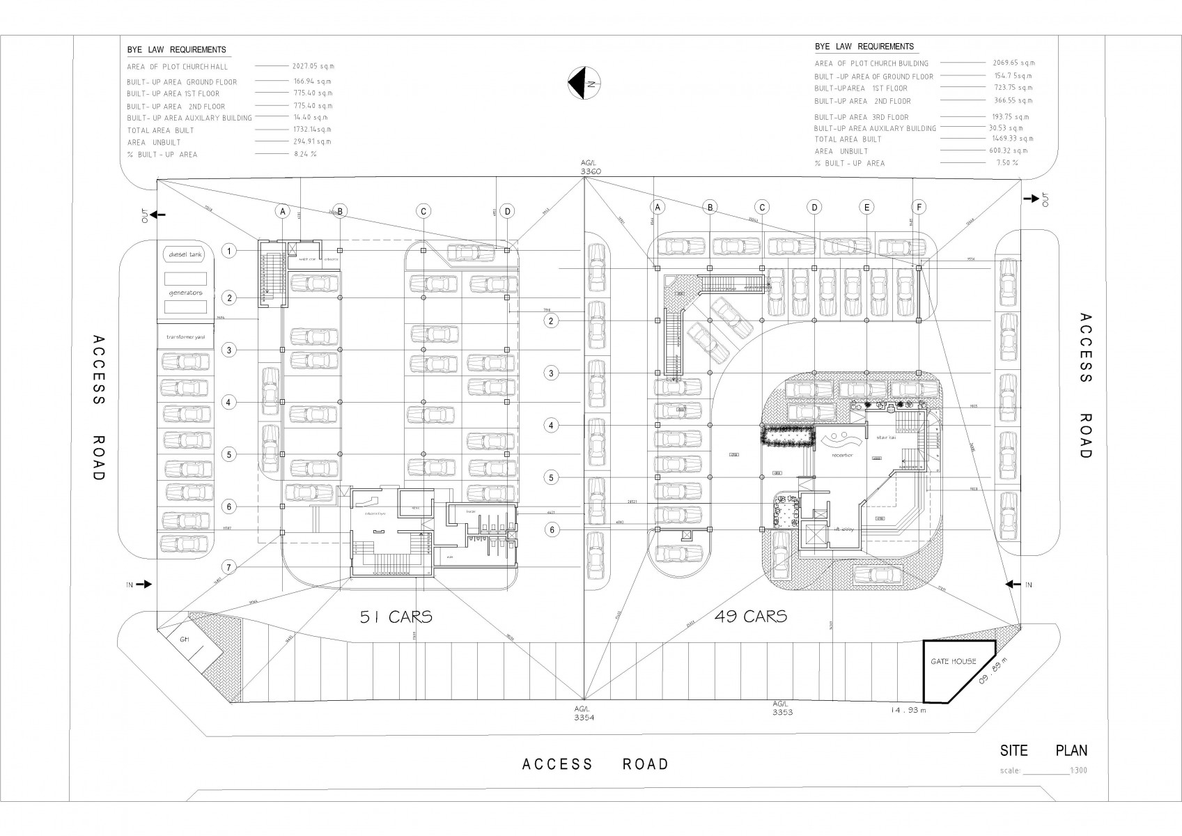
Chapel and Church Hall, Victoria Garden City (VGC) Lagos, for Foursquare Gospel Church

Scope of Services: Architecture